TT-UQK浮球液位控制器的調試和安裝
TT-UQK浮球液位控制器的調試和安裝

一、TT-UQK浮球液位控制器工作原理
TT-UQK浮球液位控制器屬于兩位式儀表,適用于石油、化工、冶金、電力、造紙和食品等工業部門在消費過程對各種不銹鋼材料不起腐蝕作用的且不含有導磁雜質的敞口或帶壓容器內介質的液位控制。浮球開關分防爆和非防爆兩大類。具有運用安全,性能可靠,維修便當等特性。當液位抵達高、低極限位置時,控制器內電觸點可作為信號報警裝置或電動泵等線路中的開關。浮球液位控制器中的磁性浮球隨被測液位沿丈量導管作上下移動,其磁體使導管內相應位置的舌簧管瞬時切換,輸出相應的位置觸點信號,與相應的控制電路配合,即可完成注液或抽液泵的自動控制,使液位控制在規則的范圍。
浮球液位控制器位置觸點信號與報警電路配合,可做為風險液位(超上限、超下限)報警及控制用。
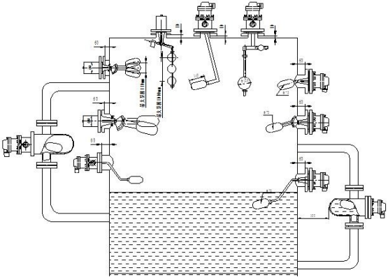
二、TT-UQK浮球液位控制器結構
TT-UQK浮球液位控制器由互為隔離的浮球組與觸點組兩部分組成。浮球組接觸液體,觸點組不接觸液體。兩部分由法蘭將浮球組與觸點組隔分開來。浮球液位控制器由接線盒、丈量導管、磁性浮球、信號單元和安裝件、上下限位圈等組成。控制器在安裝時應避免彎曲和顛震,以防損壞內部信號當被測介質液位升高或降低時,受浮力作用,浮球隨之升降,使其端部的磁鋼作反方向的上、下擺動.經過磁耦協作用,推進裝在法蘭內的相同磁極的磁鋼點組間接通或斷開,使外接的控制電器接通或斷開,從而控制信號報警裝置報警或啟停電動泵。
浮球在隨液位升降過程中,只需當浮球處于上、下兩個極限位置時,動觸點才會在靜觸點間接通或斷開,從而使外接的控制電器接通或斷開,進而控制信號報警裝置報警或啟停電動泵。而在浮球隨液位升降過程中,并無連續信號輸出,只堅持原有的接通或斷開。

三、TT-UQK浮球液位控制器控制方案
浮球液位控制器可以與騰泰儀表科技有限公司的液位控制箱配合運用,對1~3臺20kw以上的注液泵中止自動控制,也可自己另配控制電路。
四、TT-UQK浮球液位控制器特性
1、觸點燒蝕小,工作壽命長。
2、能抑制虛假液位對控測的影響。
3、能開斷高壓大電流負荷而無火花。
4、內觸點面積大,惰性氣體維護。
5、六種控制方案,適用于不同的控制系統。
五、TT-UQK浮球液位控制器安裝與調試
TT-UQK浮球液位控制器外法蘭可恣意旋轉,安裝時應留意螺栓孔方位,應保證使接線口朝向下方(頂裝方式除外)。


一、TT-UQK浮球液位控制器工作原理
TT-UQK浮球液位控制器屬于兩位式儀表,適用于石油、化工、冶金、電力、造紙和食品等工業部門在消費過程對各種不銹鋼材料不起腐蝕作用的且不含有導磁雜質的敞口或帶壓容器內介質的液位控制。浮球開關分防爆和非防爆兩大類。具有運用安全,性能可靠,維修便當等特性。當液位抵達高、低極限位置時,控制器內電觸點可作為信號報警裝置或電動泵等線路中的開關。浮球液位控制器中的磁性浮球隨被測液位沿丈量導管作上下移動,其磁體使導管內相應位置的舌簧管瞬時切換,輸出相應的位置觸點信號,與相應的控制電路配合,即可完成注液或抽液泵的自動控制,使液位控制在規則的范圍。
浮球液位控制器位置觸點信號與報警電路配合,可做為風險液位(超上限、超下限)報警及控制用。
二、TT-UQK浮球液位控制器結構
TT-UQK浮球液位控制器由互為隔離的浮球組與觸點組兩部分組成。浮球組接觸液體,觸點組不接觸液體。兩部分由法蘭將浮球組與觸點組隔分開來。浮球液位控制器由接線盒、丈量導管、磁性浮球、信號單元和安裝件、上下限位圈等組成。控制器在安裝時應避免彎曲和顛震,以防損壞內部信號當被測介質液位升高或降低時,受浮力作用,浮球隨之升降,使其端部的磁鋼作反方向的上、下擺動.經過磁耦協作用,推進裝在法蘭內的相同磁極的磁鋼點組間接通或斷開,使外接的控制電器接通或斷開,從而控制信號報警裝置報警或啟停電動泵。
浮球在隨液位升降過程中,只需當浮球處于上、下兩個極限位置時,動觸點才會在靜觸點間接通或斷開,從而使外接的控制電器接通或斷開,進而控制信號報警裝置報警或啟停電動泵。而在浮球隨液位升降過程中,并無連續信號輸出,只堅持原有的接通或斷開。

三、TT-UQK浮球液位控制器控制方案
浮球液位控制器可以與騰泰儀表科技有限公司的液位控制箱配合運用,對1~3臺20kw以上的注液泵中止自動控制,也可自己另配控制電路。
四、TT-UQK浮球液位控制器特性
1、觸點燒蝕小,工作壽命長。
2、能抑制虛假液位對控測的影響。
3、能開斷高壓大電流負荷而無火花。
4、內觸點面積大,惰性氣體維護。
5、六種控制方案,適用于不同的控制系統。
五、TT-UQK浮球液位控制器安裝與調試
TT-UQK浮球液位控制器外法蘭可恣意旋轉,安裝時應留意螺栓孔方位,應保證使接線口朝向下方(頂裝方式除外)。

上一條:雙金屬溫度計的種類和用途
下一條:孔板流量計的特點
騰泰儀表推薦
相關公司動態
- TT-UFZ簡易式重錘浮標液位計和TT-UFZ翻板式重錘浮標液位計的區別
- 定制HC膜片液位變送器TT-2088G-2M
- 1/2螺紋特殊定制阻旋料位開關
- 差壓變送器一般常見故障
- 氣體渦輪流量計的工作原理和日常維護
- 超聲波明渠流量計的技術參數和接線方法
- 手持式超聲波流量計的工作原理和主要用途
- 流量差報警儀的應用范圍、基本參數和操作方法
- 智能流量積算儀的概述和基本操作
- 電浮筒液位計的原理和應用范圍
- 投入式液位變送器原理、結構及安裝調試
- 智能旋進旋渦流量計的使用方法及參數切換設置
- 液位上下限報警控制、液位高低報警控制及無線
- 超聲波液位計的裝置與設置
- 防爆型超聲波液位計的裝置方式及注意事項
- 氣體腰輪流量計的造型要求和安裝注意事項
- 旋進旋渦流量計與氣體渦輪流量計的主要區別
- TT-LWGY系列渦輪流量計的用途和原理
- 孔板流量計的特點
- TT-UQK浮球液位控制器的調試和安裝
- 磁翻板液位計的安裝保養
- 氣體渦輪流量計如何安裝
- 分體式超聲波液位計接線圖
- 投入式液位變送器在靜、動水中的電氣連接
- 導波雷達物位計測量原理技術要求
- 插入式電磁流量計安裝要求
- 氣體渦輪流量計的使用和維護
- 孔板流量計的安裝要求和維護注意事項
- 浮標液位計的安裝與使用
- 雙金屬溫度計的種類和用途

