磁翻板液位計結構圖、安裝圖、安裝步驟、使用
磁性翻板液位計結構圖、安裝圖、安裝步驟、使用及維護注意事項全套介紹(圖)
液位計是根據浮力和磁耦合原理研制的。當被測容器中的液位上升和下降時,液位計體管中的磁浮子也隨之上升和上升,浮子中的永磁體通過磁耦合轉移到磁翻轉柱指示器上,驅動紅、白翻轉柱翻轉180°,液面上升時由白色變為紅色,液面下降時由紅色變為白色,并在指示劑的紅白交界處將容器內液位的實際高度轉換到容器內的實際高度。因此,可以實現液位的明確指示。
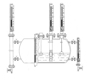
安裝圖
且側一連接的磁性有翻轉容器導流中連接位計兩式與管分別法蘭,管個磁性法蘭"導流板根在液裝浮子主管道。
TT-UHZ頂部安裝磁性翻板液位計安裝步驟
將頂部安裝的磁翻轉板液位計分為兩部分,上部在容器頂部,下部安裝在容器內,法蘭與容器法蘭連接。液體管中的部分浮子通過連桿和上導管中的磁頭連接。當液體發生變化時,浮子驅動磁性鋼在導管中上下移動,驅動紅色和白色指示球的顯示部分翻轉,并讀取面板上的液面高度。
TT-UHZ磁性翻板液位計的使用與維護注意事項
1.磁浮子液位計本體周圍不允許有磁性材料靠近。嚴禁用鐵絲固定,否則會影響磁翻板液位計的正常工作
2。如果用戶自行采用伴熱管,則必須選用銅管等非磁性材料。伴熱溫度根據介質條件
3。確定磁翻板液位計必須垂直安裝,磁翻板液位計與容器主管之間應安裝球閥,以便于維護和清洗
4。介質中不得有固體雜質或磁性物質,以免堵塞浮子
5。使用前,零位以下的小球應設為紅色,其他小球應設為白色
6。打開底部法蘭并安裝磁性浮子(注意:重型端與磁性端向上,不能倒置)。調試時,先打開上閥,再慢慢打開下閥,使介質順利進入主管內(運行時避免介質快速沖擊浮子,造成浮子系列波動,影響顯示精度),觀察磁性紅白球翻轉是否正常,然后關閉下閥,打開排污閥,讓主管內液位下降,運行三次后即可投入運行(腐蝕性及其他特殊液體除外)
8。主管應根據介質情況不定期清洗,去除雜質
9。對于一定長度的液位計(普通型>3M,防腐型>2m),應增加中間加強法蘭或固定支架吊耳,以增加強度,克服自身重量
10。磁翻板液位計的安裝位置應避開或遠離物料介質的進出口,以免物料流體的局部面積迅速變化,影響液位測量的精度
11。配遠傳配套儀表時,應做到:a)使遠傳配套儀表靠近液位計主管,并用不銹鋼箍固定(禁止用鐵);b) 遠傳儀表的上傳感面應朝向并靠近主管;c) 遠傳儀表的零位應與液位計的零位在同一水平面上;d) 遠傳配套儀表與顯示儀表或工控計算機之間的配線應分別穿保護管或用屏蔽雙芯電纜敷設;e) 接線盒接線孔敷設后,要求密封良好,以免雨水、濕氣等侵入,造成遠傳配套儀表不能正常工作。檢修或調試完畢后,應及時將接線盒蓋好。
上一條:4-20ma遠傳型磁翻板液位計的工作原理
下一條:阿牛巴流量計的特點及安裝說明
騰泰儀表推薦
相關公司動態
- TT-UFZ簡易式重錘浮標液位計和TT-UFZ翻板式重錘浮標液位計的區別
- 定制HC膜片液位變送器TT-2088G-2M
- 1/2螺紋特殊定制阻旋料位開關
- 差壓變送器一般常見故障
- 氣體渦輪流量計的工作原理和日常維護
- 超聲波明渠流量計的技術參數和接線方法
- 手持式超聲波流量計的工作原理和主要用途
- 流量差報警儀的應用范圍、基本參數和操作方法
- 智能流量積算儀的概述和基本操作
- 電浮筒液位計的原理和應用范圍
- 投入式液位變送器原理、結構及安裝調試
- 智能旋進旋渦流量計的使用方法及參數切換設置
- 液位上下限報警控制、液位高低報警控制及無線
- 超聲波液位計的裝置與設置
- 防爆型超聲波液位計的裝置方式及注意事項
- 氣體腰輪流量計的造型要求和安裝注意事項
- 旋進旋渦流量計與氣體渦輪流量計的主要區別
- TT-LWGY系列渦輪流量計的用途和原理
- 孔板流量計的特點
- TT-UQK浮球液位控制器的調試和安裝
- 磁翻板液位計的安裝保養
- 氣體渦輪流量計如何安裝
- 分體式超聲波液位計接線圖
- 投入式液位變送器在靜、動水中的電氣連接
- 導波雷達物位計測量原理技術要求
- 插入式電磁流量計安裝要求
- 氣體渦輪流量計的使用和維護
- 孔板流量計的安裝要求和維護注意事項
- 浮標液位計的安裝與使用
- 雙金屬溫度計的種類和用途




